Tek Katlı Evler

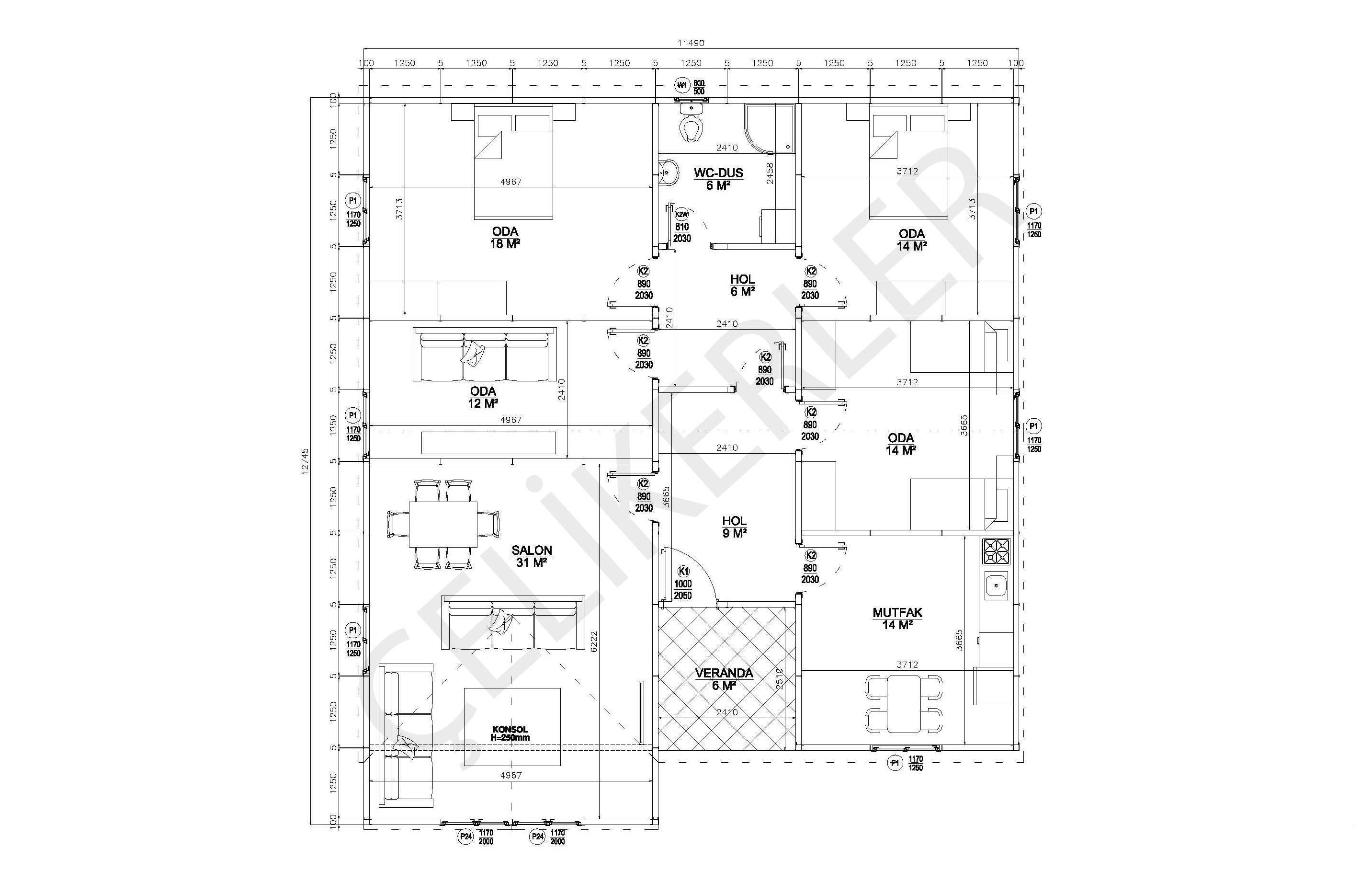
132-m² Tek Katlı Hafif Çelik Ev
Toplam Kapalı Alan
124 m²
Toplam Kullanım Alanı
124 m²
Veranda Alanı
6 m²
Kuru Hacim Döseme Kaplama Metrajı
107 m
Kuru Hacim Döşeme Süpürgelik Metrajı
86 m
Wc - Duş Döşeme Metrajı
6 m²
Wc - Duş Duvar Metrajı
25 m²
Stropiyer Metrajı
121 m
Çatı Yüzey Alanı
185 m²












⇦
⇨
X
X