Tek Katlı Evler

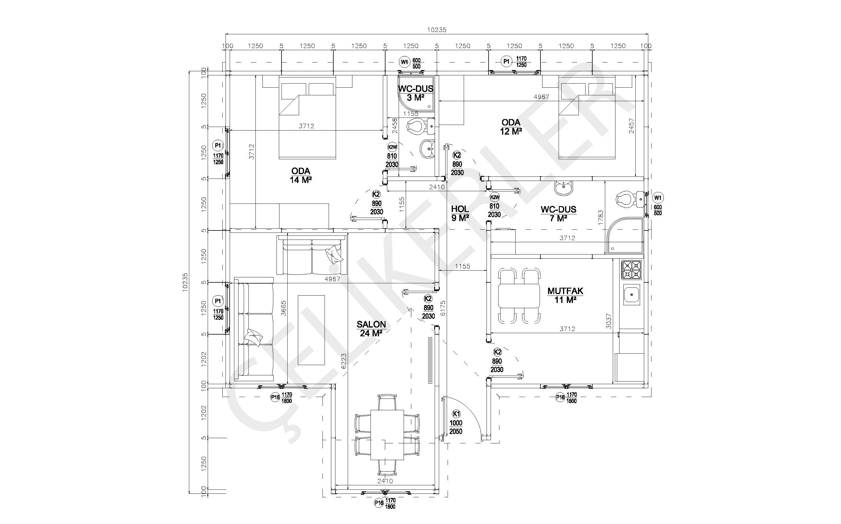
87-m² Tek Katlı Hafif Çelik Ev
Toplam Kapalı Alan
80 m²
Toplam Kullanım Alanı
80 m²
Kuru Hacim Döseme Kaplama Metrajı
70 m
Kuru Hacim Döşeme Süpürgelik Metrajı
93 m
Wc - Duş Döşeme Metrajı
10 m²
Wc - Duş Duvar Metrajı
45 m²
Stropiyer Metrajı
93 m
Çatı Yüzey Alanı
125 m²



⇦
⇨
X
X