Dubleks Evler

129m² Dubleks Prefabrik Ev
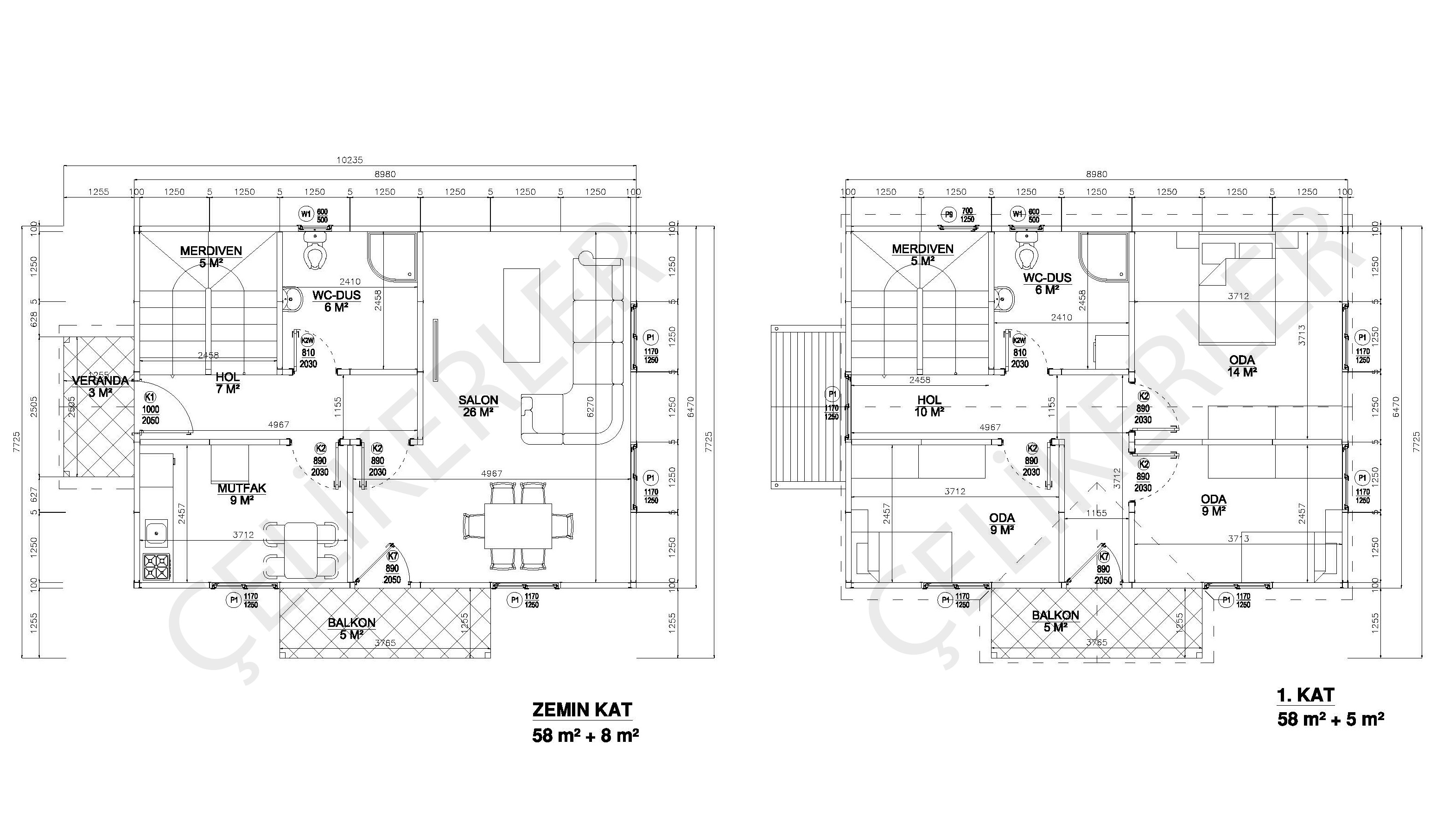
Toplam Kapalı Alan
106 m²
Toplam Kullanım Alanı
106 m²
Veranda Alanı
3 m²
Balkon Alanı
10 m²
Kuru Hacim Döseme Kaplama Metrajı
94 m
Kuru Hacim Döşeme Süpürgelik Metrajı
112 m
Wc - Duş Döşeme Metrajı
12 m²
Wc - Duş Duvar Metrajı
50 m²
Stropiyer Metrajı
112 m
Çatı Yüzey Alanı
67 m²



⇦
⇨
X
X