Dubleks Evler

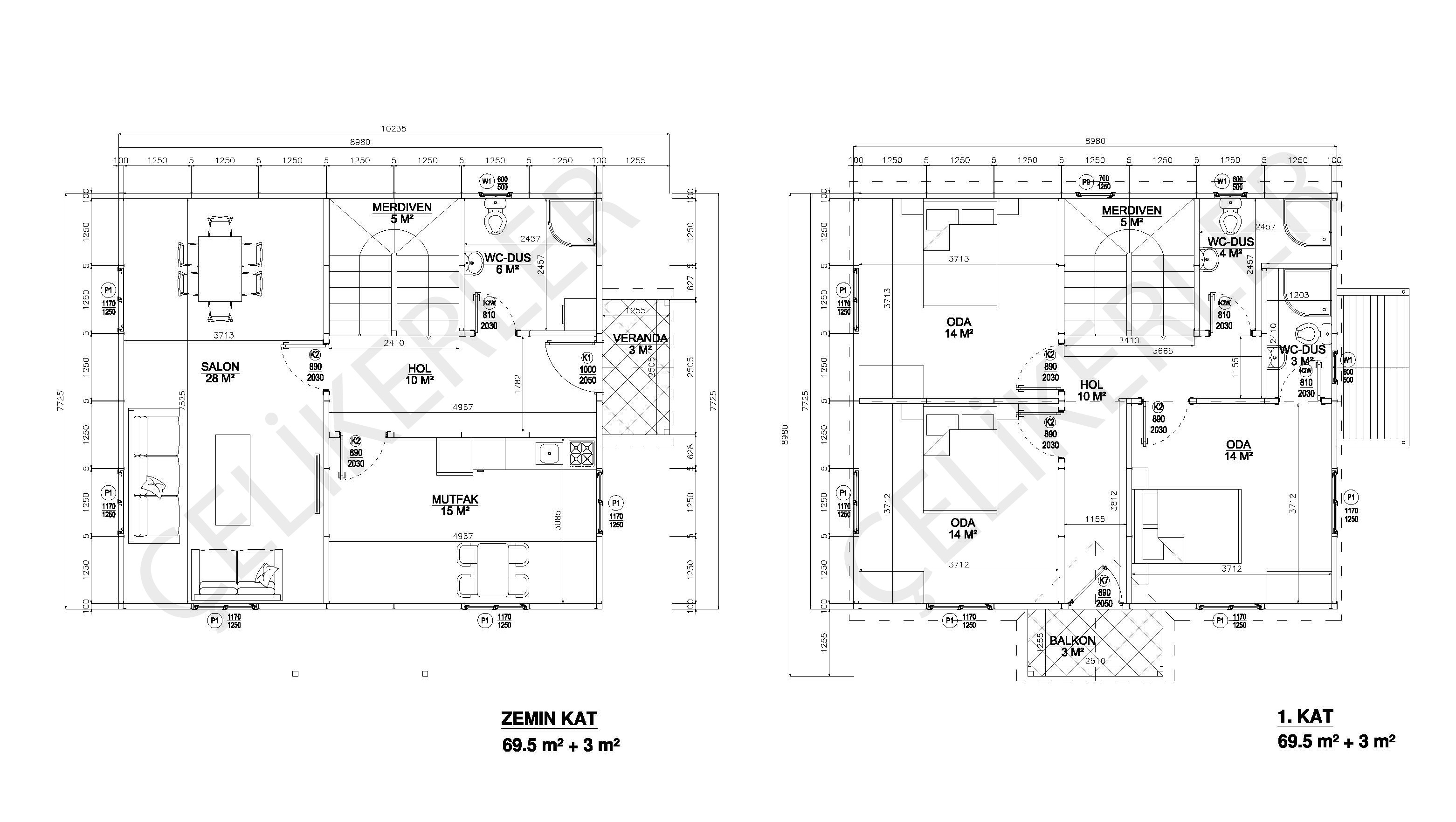
143m² Dubleks Prefabrik Ev
Toplam Kapalı Alan
128 m²
Toplam Kullanım Alanı
128 m²
Veranda Alanı
3 m²
Balkon Alanı
3 m²
Kuru Hacim Döseme Kaplama Metrajı
115 m
Kuru Hacim Döşeme Süpürgelik Metrajı
124 m
Wc - Duş Döşeme Metrajı
13 m²
Wc - Duş Duvar Metrajı
68 m²
Stropiyer Metrajı
124 m
Çatı Yüzey Alanı
79 m²



⇦
⇨
X
X