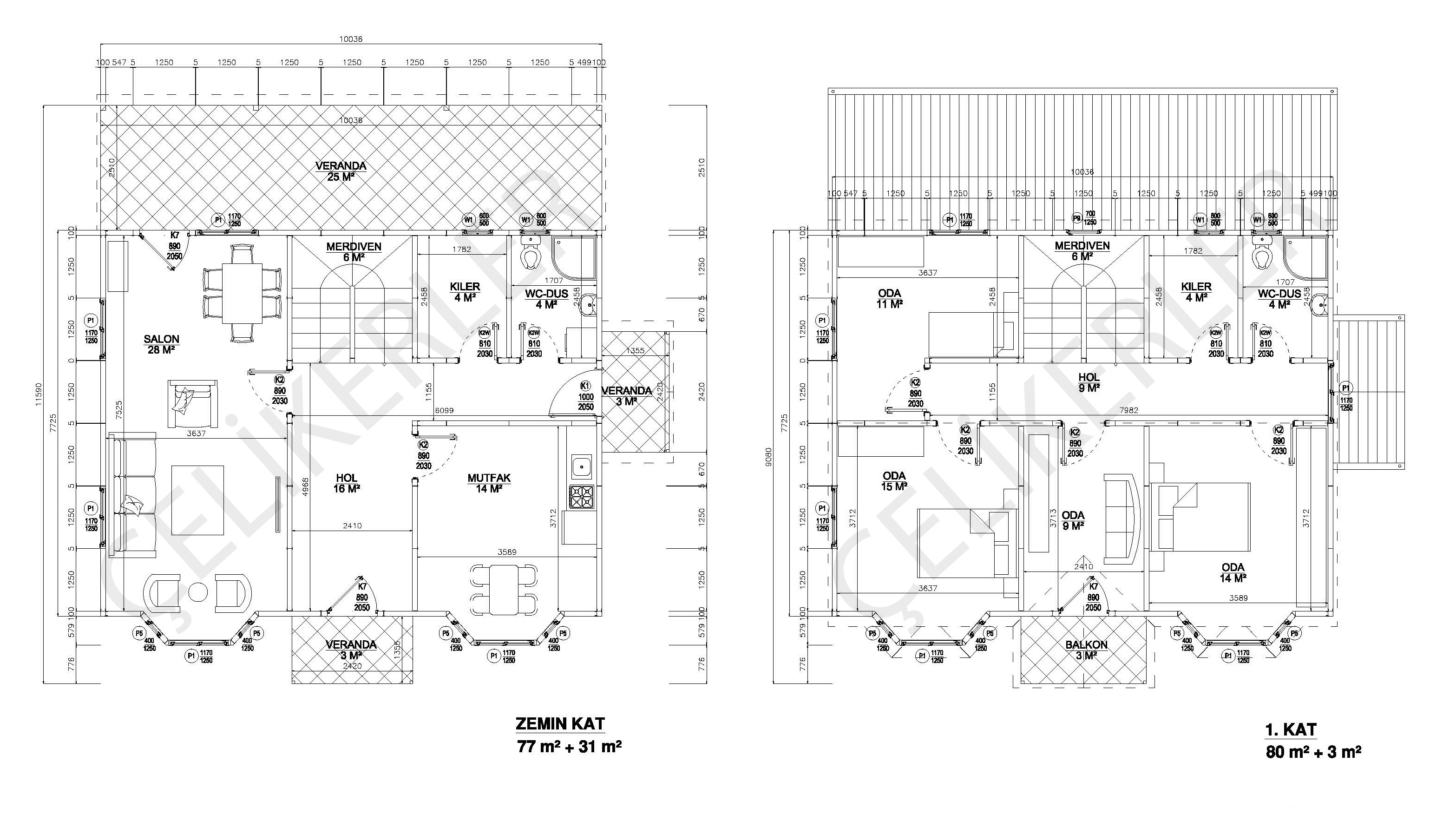
Dubleks Evler

194m² Dubleks Prefabrik Ev
Toplam Kapalı Alan
148 m²
Toplam Kullanım Alanı
148 m²
Veranda Alanı
31 m²
Balkon Alanı
3 m²
Kuru Hacim Döseme Kaplama Metrajı
140 m
Kuru Hacim Döşeme Süpürgelik Metrajı
167 m
Wc - Duş Döşeme Metrajı
8 m²
Wc - Duş Duvar Metrajı
40 m²
Stropiyer Metrajı
167 m
Çatı Yüzey Alanı
90 m²



⇦
⇨
X
X