Dubleks Evler

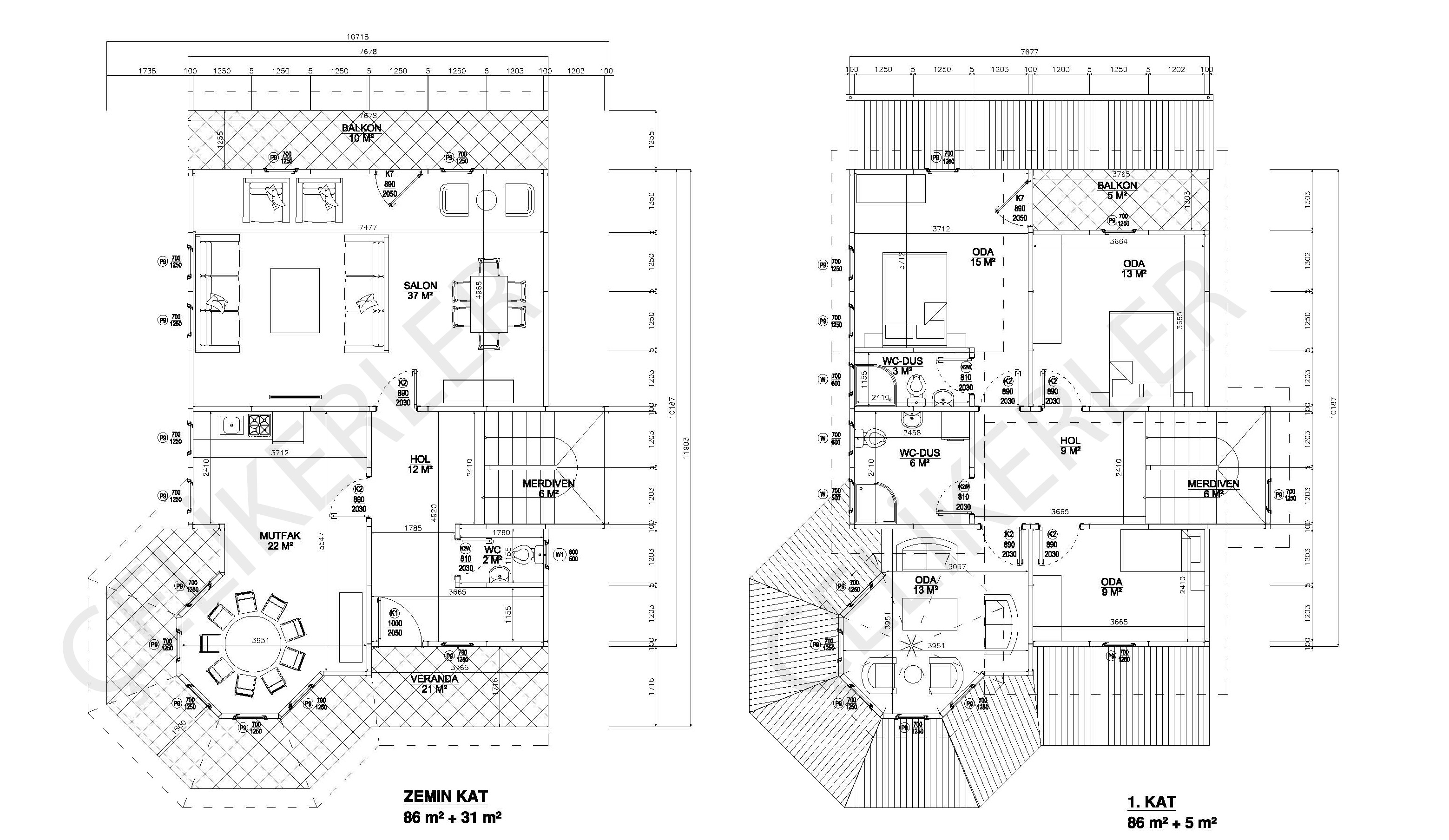
208m² Dubleks Prefabrik Ev
Toplam Kapalı Alan
153 m²
Toplam Kullanım Alanı
153 m²
Veranda Alanı
21 m²
Balkon Alanı
16 m²
Kuru Hacim Döseme Kaplama Metrajı
141 m
Kuru Hacim Döşeme Süpürgelik Metrajı
148 m
Wc - Duş Döşeme Metrajı
13 m²
Wc - Duş Duvar Metrajı
63 m²
Stropiyer Metrajı
148 m
Çatı Yüzey Alanı
199 m²



⇦
⇨
X
X